Если цена в объявлении изменится, мы сразу сообщим вам об этом на электронную почту.
Нажимая «Подписаться», вы соглашаетесь с правилами.
продам дом, Триумфальная, 3628 000 000 ₽
23 июля 2025
Дата публикации объявления
Обн. 27 фев
Дата обновления объявления
8
Количество просмотров (+ просмотры за сегодня)
186 294 ₽/м²
Чистая продажа
Термин "Чистая продажа" означает, что в квартире никто не прописан или
есть куда выписаться и вывезти вещи. Это лучший вариант для покупателя.
Вероятность срыва сделки минимальна.
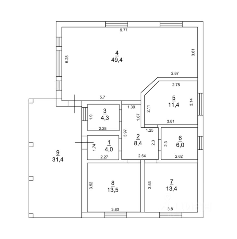
Этажей1
Площадь участка5 соток
Общая площадь150,3 м2
Материал домакирпич
ЭлектричествоЕсть
Газоснабжениецентральное
Продается дом! Собственник. Строил для себя, продаю в связи с переездом. Фундамент ленточный под домом 1,6 метра + плита 16см.( поднимал участок, завозил землю). Рядом с домом построено отдельно стоящее здание - баня (можно использовать как гостевой домик, размер 6,0 на 6,5 метров, комната отдыха 18 м2, душевая, с/у, парилка) Стены в черновой отделке, заведена вода и электричество. На полу в бане везде теплые полы за исключением парилки, поверх труб сделана полусухая стяжка) В доме сделана предчистовая отделка стен ( высота потолков 3,10см .
Продается дом! Собственник. Строил для себя, продаю в связи с переездом. Фундамент ленточный под домом 1,6 метра + плита 16см.( поднимал участок, завозил землю). Рядом с домом построено отдельно стоящее здание - баня (можно использовать как гостевой домик, размер 6,0 на 6,5 метров, комната отдыха 18 м2, душевая, с/у, парилка) Стены в черновой отделке, заведена вода и электричество. На полу в бане везде теплые полы за исключением парилки, поверх труб сделана полусухая стяжка) В доме сделана предчистовая отделка стен ( высота потолков 3,10см .Стены оштукатурены и сделана шпаклевка, разводка электрики, газовый котел 24 кВт, теплые полы проложены во всем доме( 11 контуров в доме и 4 контура в бане) , за исключением трех спальных комнат в доме, где стоят батареи, просторная кухня гостиная 50 м2 с вторым светом, с выходом на летнюю террасу площадью 31 м2) В доме стоят мультифункциональные стеклопакеты ( немецкая фурнитура , 72 профиль, 3-х камерные) Крыша дома сделана из мягкой кровли, во дворе скважина, септик сделан с переливом ( установлены 4 кольца по 2 метра диаметром) Во дворе залита бетонная отмостка и площадка под парковку автомобилей. Участок угловой ,сделано два въезда ( двое ворот, на центральных воротах установлена автоматика) Остальные вопросы по телефону.