Если цена в объявлении изменится, мы сразу сообщим вам об этом на электронную почту.
Нажимая «Подписаться», вы соглашаетесь с правилами.
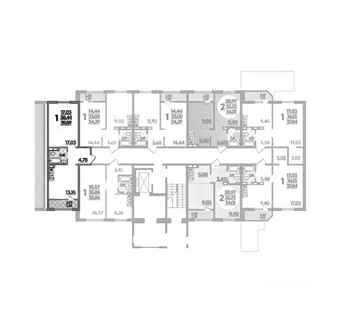
продам 1-к, Имени Профессора Малигонова, 42/25 405 095 ₽
5 июля 2025
Дата публикации объявления
Обн. 17 апр
Дата обновления объявления
Турбо x8
135 500 ₽/м²
Чистая продажа
Термин "Чистая продажа" означает, что в квартире никто не прописан или
есть куда выписаться и вывезти вещи. Это лучший вариант для покупателя.
Вероятность срыва сделки минимальна.
Квартира
Общая площадь39,89 м2
Кухня13,2 м2
Количество лоджий1
Тип собственностисвидетельство о праве собственности
ЖК — комплексная застройка переменной этажности. Фасады выполнены с использованием штукатурки светлого цвета с яркими элементами. В домах сделана дизайнерская отделка входных групп и установлены современные лифты.
В проекте предложено множество планировочных решений: в наличии квартиры, как классического типа, так и европланировки. Сдаются они с чистовой отделкой, высота потолков 2.7 метра.
Проект благоустроен. На придомовой территории расположены современные детские и спортивные площадки, проведено озеленение, на цокольных этажах запроектированы коммерческие помещения. На территории комплекса расположены школа, детские сады и поликлиника. Для владельцев автомобилей предусмотрены многоуровневый паркинг и стоянка.
ЖК находится в районе Витаминкомбинат.
ЖК — комплексная застройка переменной этажности. Фасады выполнены с использованием штукатурки светлого цвета с яркими элементами. В домах сделана дизайнерская отделка входных групп и установлены современные лифты.
В проекте предложено множество планировочных решений: в наличии квартиры, как классического типа, так и европланировки. Сдаются они с чистовой отделкой, высота потолков 2.7 метра.
Проект благоустроен. На придомовой территории расположены современные детские и спортивные площадки, проведено озеленение, на цокольных этажах запроектированы коммерческие помещения. На территории комплекса расположены школа, детские сады и поликлиника. Для владельцев автомобилей предусмотрены многоуровневый паркинг и стоянка.
ЖК находится в районе Витаминкомбинат. Внешняя инфраструктура развита, в пешей доступности: детские сады, школы, магазины, кафе, салоны красоты, медицинские учреждения. До центра Краснодара — 30 минут транспортом.