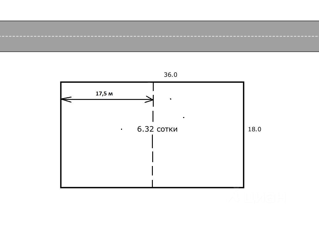
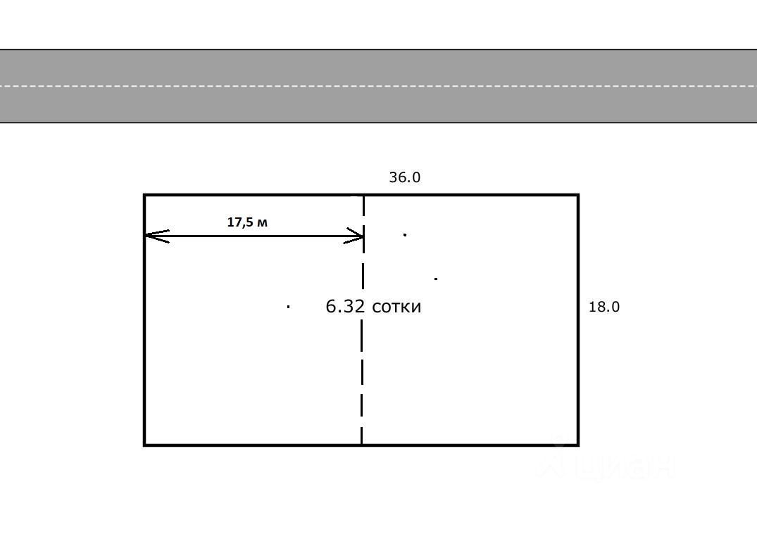
В самом центре г.Краснодара в то же время в тихом не проезжем месте (рядом жк Сердце, до парка Галицкого 5 минут пешком) Продаю земельный участок ИЖС правильной геометрической формы, 17Х35 м, с фасадом 35 м, центральные коммуникации, хорошие соседи, не проездное место. два закрытых заезда (только для собственников домов).
Получена выписка из градостроительного плана с прекрасным пятном застройки, при желании можно разделить на два участка с фасадом каждый 17,5 м.
Арт:1014446189












