сдам универсальное помещение, Старокубанская, 116/2936 500 ₽ в месяц
18 июня 2025
Дата публикации объявления
Обн. 8 мая
Дата обновления объявления
6
Количество просмотров (+ просмотры за сегодня)
1000 ₽/м² в месяц
Параметры
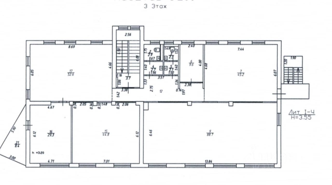
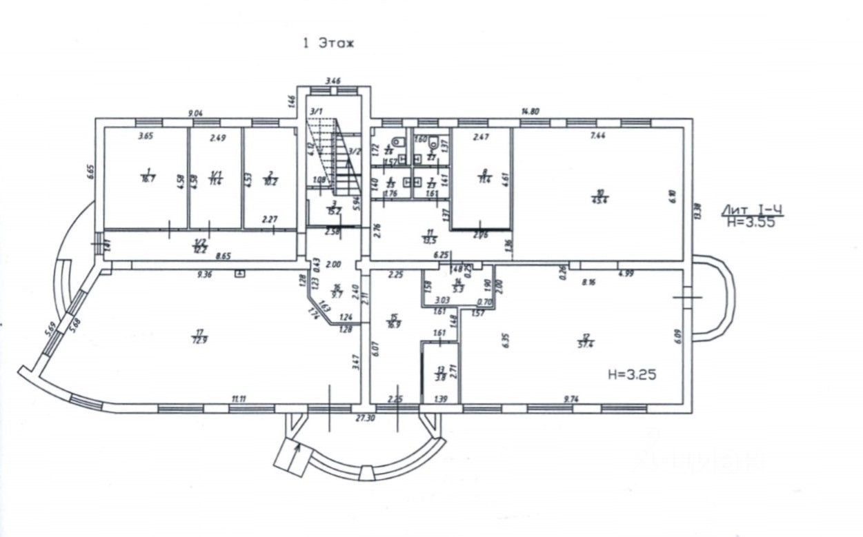
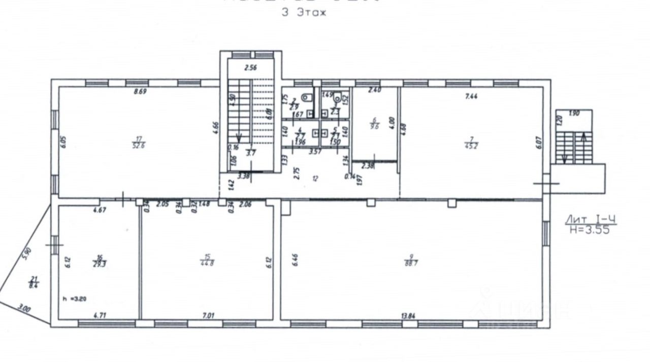
Общая площадь936,5 м2
Этаж1
Отдельный входесть
Назначение помещения
для работы с клиентами
Сдается в аренду отдельно стоящее здание в Карасунском округе
В одной линейке с ЖК Элегант, на против ЖК Патрики и ЖК Режиссер
отдельно стоящее здание фасад на улицу общая площадь 936,5 кв.м. 3 этажа 4 отдельные входные группы пожарные выходы сан. узел на каждом этаже достойный ремонт сдается без мебели место для приема пищи спорт зал с душевой потолки 3,20 м. коммуникации центральные мощность 100 кВт. охрана пропускная система парковка на фасаде городская несколько парко мест во дворе Отлично подойдет под офис компании, детский центр, медицину.
Ранее размещалась IT компания.
Свободно с 1 августа
Без комиссии для арендатора!
Звоните!
Сдается в аренду отдельно стоящее здание в Карасунском округе
В одной линейке с ЖК Элегант, на против ЖК Патрики и ЖК Режиссер
отдельно стоящее здание фасад на улицу общая площадь 936,5 кв.м. 3 этажа 4 отдельные входные группы пожарные выходы сан. узел на каждом этаже достойный ремонт сдается без мебели место для приема пищи спорт зал с душевой потолки 3,20 м. коммуникации центральные мощность 100 кВт. охрана пропускная система парковка на фасаде городская несколько парко мест во дворе Отлично подойдет под офис компании, детский центр, медицину.
Ранее размещалась IT компания.
Свободно с 1 августа
Без комиссии для арендатора!
Звоните! Оперативный показ в удобное время. 107419750