Если цена в объявлении изменится, мы сразу сообщим вам об этом на электронную почту.
Нажимая «Подписаться», вы соглашаетесь с правилами.
продам дом, Советская8 890 000 ₽
31 мая 2025
Дата публикации объявления
Обн. вчера
Дата обновления объявления
9
Количество просмотров (+ просмотры за сегодня)
77 304 ₽/м²
Чистая продажа
Термин "Чистая продажа" означает, что в квартире никто не прописан или
есть куда выписаться и вывезти вещи. Это лучший вариант для покупателя.
Вероятность срыва сделки минимальна.
Площадь участка11 соток
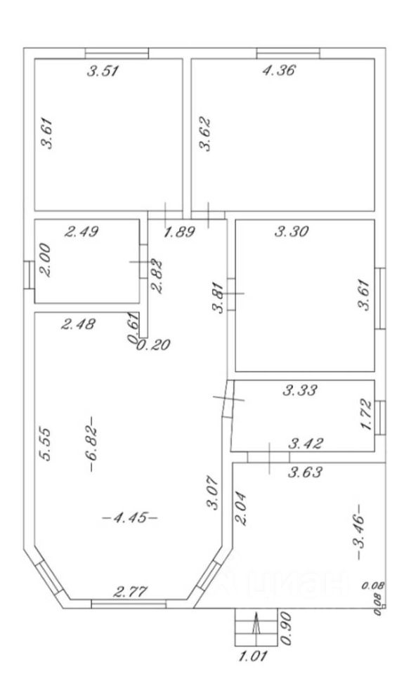
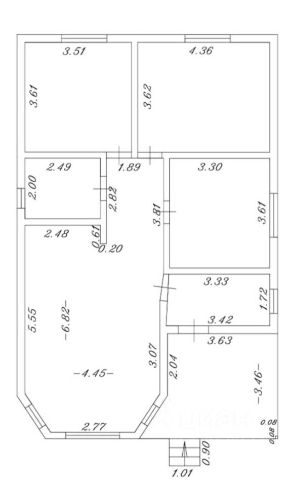
Общая площадь115 м2
ЭлектричествоЕсть
Объект 170936. Ближайший пригород Анапы с. Юровка. Одноэтажный дом общей площадью 115 кв. Дом построен из керамзитового блока. Утеплитель пенопласт. Дом облицован декоративной штукатуркой.
Земельный участок 11 соток. Фасад 35 метра.
В доме три комнаты, большая кухня - гостиная, санузел. В доме сделан ремонт из качественных строительных материалов. Теплый пол. Вода центральная Канализация септик. Газ заведен в дом. Отопление индивидуальное газовое. Электричество 15 кВт.
В шаговой доступности магазины Магнит, Пятерочка, школа, больница, остановка общественного транспорта. Транспорт ездит регулярно, по расписанию.
Один собственник. Дом без обременений. Семейная ипотека нет.
Объект 170936. Ближайший пригород Анапы с. Юровка. Одноэтажный дом общей площадью 115 кв. Дом построен из керамзитового блока. Утеплитель пенопласт. Дом облицован декоративной штукатуркой.
Земельный участок 11 соток. Фасад 35 метра.
В доме три комнаты, большая кухня - гостиная, санузел. В доме сделан ремонт из качественных строительных материалов. Теплый пол. Вода центральная Канализация септик. Газ заведен в дом. Отопление индивидуальное газовое. Электричество 15 кВт.
В шаговой доступности магазины Магнит, Пятерочка, школа, больница, остановка общественного транспорта. Транспорт ездит регулярно, по расписанию.
Один собственник. Дом без обременений. Семейная ипотека нет.