В избранном
В избранное
Пожаловаться
Напечатать
Следить за ценой

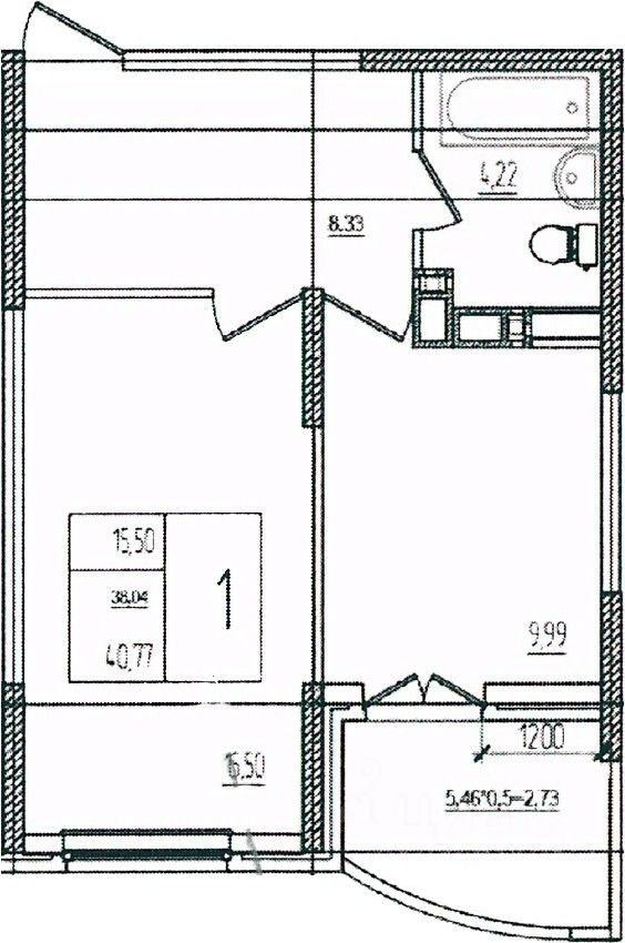
продам 1-к, им Кирилла Россинского, 3/15 486 000 ₽

20 мая 2025
Обн. вчера
3
134 560 ₽/м²
  • Чистая продажа