Жилой комплекс представляет собой 4 корпуса высотой в 16 этажей. Фасад выполнен из вентилируемых материалов.
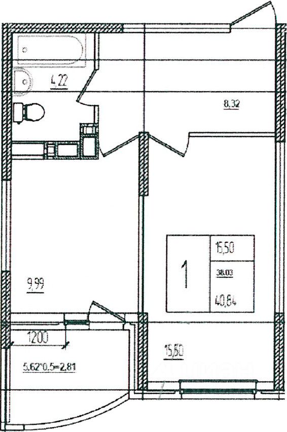
В комплексе предложено множество планировочных решений: в наличии квартиры, как классического типа, так и европланировки. Они сдаются с подчистовой отделкой, высота потолков составляет 2,7 метра.
Внутренний двор оснащен современными детскими и спортивными площадками. На территории комплекса выполнено озеленение. Для владельцев автомобилей предусмотрена крытая стоянка и отдельный многоуровневый паркинг.
ЖК расположен в районе завода радиоизмерительных приборов. В 15 минутах пешком находятся: детские сады, школы, больницы, магазины. До центра Краснодара — 15 минут транспортом.











