В избранном
В избранное
Пожаловаться
Напечатать
Следить за ценой

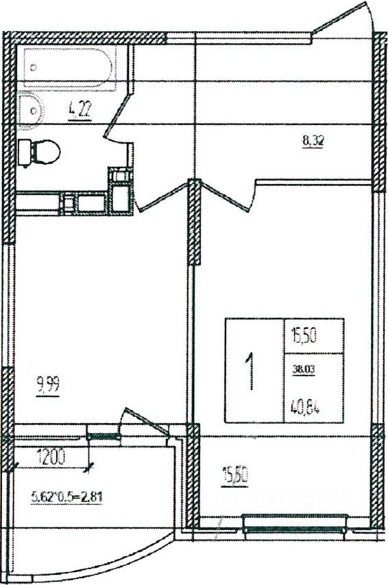
продам 1-к, им Кирилла Россинского, 3/15 499 000 ₽

20 мая
Обн. сегодня
134 647 ₽/м²
  • Чистая продажа