Если цена в объявлении изменится, мы сразу сообщим вам об этом на электронную почту.
Нажимая «Подписаться», вы соглашаетесь с правилами.
продам дом, Пролетарская, 536 000 000 ₽
11 апр 2025
Дата публикации объявления
Обн. 1 мая
Дата обновления объявления
2
Количество просмотров (+ просмотры за сегодня)
66 007 ₽/м²
Чистая продажа
Термин "Чистая продажа" означает, что в квартире никто не прописан или
есть куда выписаться и вывезти вещи. Это лучший вариант для покупателя.
Вероятность срыва сделки минимальна.
Площадь участка17,84 соток
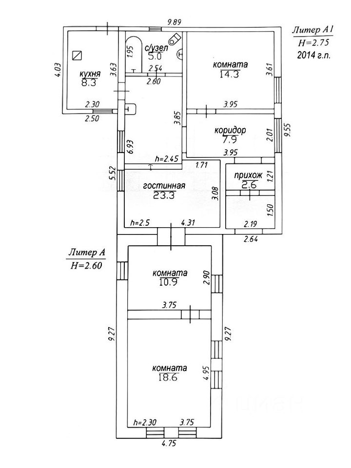
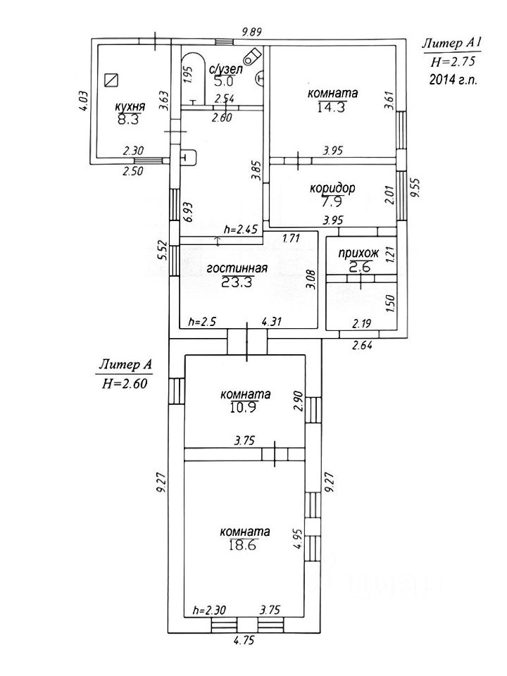
Общая площадь90,9 м2
Материал домакирпич
ЭлектричествоЕсть
Газоснабжениецентральное
Село Ванновское. Жилой дом с кирпичной пристройкой 2014 г. Общая площадь дома 90,9 кв. м., жилая 43,8 кв. м. Уютная гостиная из двух зон в разных уровнях (23,3 кв. м.), три комнаты (18,6+14,3+10,9), кухня 8,3 кв. м. + тёплый пол, совмещённый санузел 5,0 кв. м. + тёплый пол, просторная прихожая/коридор. Два входа. Свежий ремонт, МПО. ГАЗ, котёл, вода, все коммуникации. На участке есть хозяйственные постройки, в том числе капитальные, беседка для отдыха, хороший фруктово-ягодный САД (4 ряда плодовых деревьев). Фасад 20 м. Земельный участок 1784 кв. м. В шаговой доступности продуктовые, хозяйственный и строительный магазины, автобусные остановки, а так же вся инфраструктура села. Цена: 6 млн. руб. ТОРГ. P.S.: Ванновское — село в Тбилисском районе Краснодарского края.
Село Ванновское. Жилой дом с кирпичной пристройкой 2014 г. Общая площадь дома 90,9 кв. м., жилая 43,8 кв. м. Уютная гостиная из двух зон в разных уровнях (23,3 кв. м.), три комнаты (18,6+14,3+10,9), кухня 8,3 кв. м. + тёплый пол, совмещённый санузел 5,0 кв. м. + тёплый пол, просторная прихожая/коридор. Два входа. Свежий ремонт, МПО. ГАЗ, котёл, вода, все коммуникации. На участке есть хозяйственные постройки, в том числе капитальные, беседка для отдыха, хороший фруктово-ягодный САД (4 ряда плодовых деревьев). Фасад 20 м. Земельный участок 1784 кв. м. В шаговой доступности продуктовые, хозяйственный и строительный магазины, автобусные остановки, а так же вся инфраструктура села. Цена: 6 млн. руб. ТОРГ. P.S.: Ванновское — село в Тбилисском районе Краснодарского края. Административный центр Ванновского сельского поселения. Село расположено в 2 км от левого берега Кубани, в 4 км на юго-восток от районного центра — станицы Тбилисской. Протяженность села составляет около 17 км. Население около 6 тыс. чел. Развита инфраструктура. В селе восемь улиц с частными и многоквартирными домами, действующий детский сад, две школы - общеобразовательная и коррекционная, Храм Пресвятой Богородицы, участковая больница с кабинетами УЗИ и МРТ, филиал сбербанка, почта, продуктовые и хозяйственные магазины. На территории Ванновского поселения осуществляют свою деятельность 108 индивидуальных предпринимателей, ПО Хлеб, а так же ЗАО им. Т.Г. Шевченко — одно из лучших предприятий района, которое входит в число трехсот эффективно работающих хозяйств агропромышленного комплекса России. Развиты маршруты общественного транспорта. Расстояние до районного центра: ст. Тбилисская - 4 км. Расстояние до областного центра: г. Краснодар - 106 км. Расстояние до столицы: г. Москва - 1179 км. Расстояния до аэропортов: Пашковский - 93 км.