Объект 1380.
Продается 2-х этажный дом, общей площадью 200 кв.м. , на участке 10 сот. в Новотитаровской станице Краснодарского края.
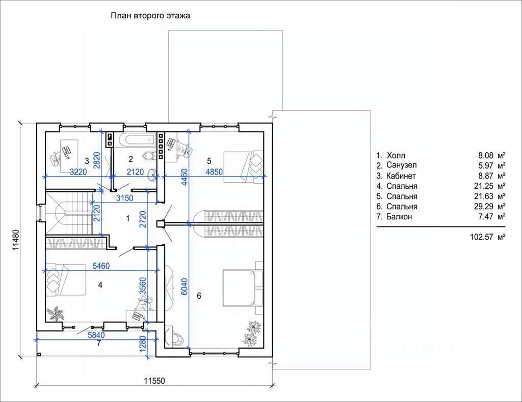
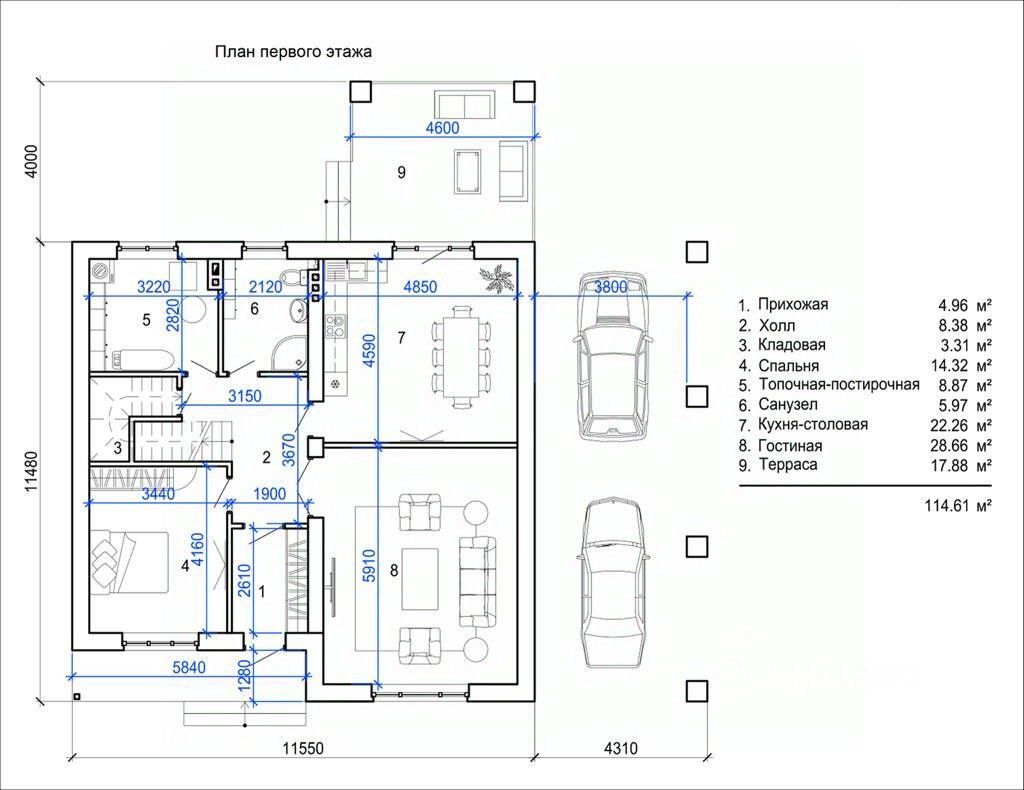
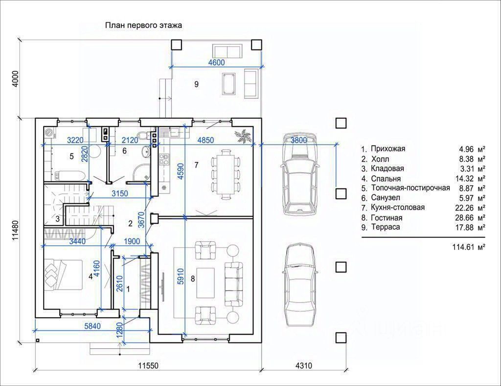
Планировка: На первом этаже: кухня-гостиная, с выходом на просторную террасу, 2 спальни, санузел, котельная, гардеробная, прихожая. На втором этаже: 3 спальни, кабинет, санузел. Разработана индивидуальная планировка. Первый этаж полностью из кирпича, второй газоблок + кирпич. Выполнена предчистовая отделка, система ''теплый пол'' по всему первому этажу, радиаторы отопления.
Коммуникации: Свет 15 кВт, вода скважина 64м, канализация (септик), газ проводят по меже.
Земельный участок: Участок 10 сот., заезд под авто, ворота, забор, навес, терраса.














