Универсальное помещение
Энгельса, 47 Показать на карте
Энгельса, 47 Показать на карте
Ейск
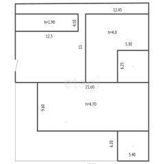
Арт. 135901834 В продаже коммерческое помещение, полностью оборудованное под салон красоты, расположенное в престижном ТЦ ''Отдых'' в центре города. Два входа — со стороны ул. Энгельса и парковки — делают объект привлекательным для различных арендаторов.Основные характеристики:Общая площадь: 61,7 кв.м.Три кабинета: 6,9 кв.м., 12,1 кв.м. и 7,7 кв.м.Два кабинета с витражными окнами, один с отдельным входом.Просторный холл с ресепшеном.Комната персонала с встроенным шкафом, местом для отдыха и раковиной.Санузел в плитке.Дизайнерский евроремонт и индивидуальное оборудование:Все оборудование и мебель изготовлены по индивидуальному заказу.Дизайнерский ремонт.Коммуникации:Центральная вода с установленным счетчиком.Теплый пол и электро-конвекторы для комфортного микроклимата.Пожарная и охранная сигнализация, видеонаблюдение и интернет.Емкость для воды с насосной станцией и электронагреватель для горячей воды.Электричество 380В.Раковины и сплит-системы в каждом кабинете.Преимущества:Идеальное расположение в центре города.Два удобных входа.Просторные и светлые кабинеты.Полный набор коммуникаций и дизайнерский ремонт.Возможность адаптации под различные виды услуг.Звоните для получения дополнительной информации и организации показа!Если мы не ответили на Ваш звонок в течение 5 минут - предоставим скидку на услуги агентства.''ООО ''Самолет Плюс'' (ОГРН 1067746757704) оказывает консультационные услуги по подбору программы кредитования, подходящей по условиям и требованиям к Клиенту, как к заемщику и к приобретаемому им объекту недвижимости. Конкретные условия зависят от банка, программы кредитования и иных требований.''
61 м2
- Показать контакты
- Добавить в избранное
61 м2
6 000 000
97 245 /м2
